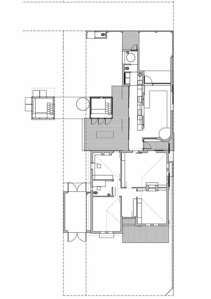
Bayswater Sustainable Extension Western Australia
Team | Paul Wakelam + Ludovic Vilbert
Completed | in process
Builder | Owner Builder
Engineer |
Photographer |


















Bayswater Sustainable Extension Western Australia
Team | Paul Wakelam + Ludovic Vilbert
Completed | in process
Builder | Owner Builder
Engineer |
Photographer |


















PWA would like to acknowledge that where-ever we are in this big Country, that we are with deep time and deep stories with a long history and future of people and place co-existing. We acknowledge the many lands on which we work and live and that the land underpins all life. Always was, Always will be. We pay our respects to their elders past, present and emerging.